Moule (97160) Le Moule , villa T4 de 91.83m² avec terrasse sur 400m2 de terrain.

Réf : 0138A 350 000 €

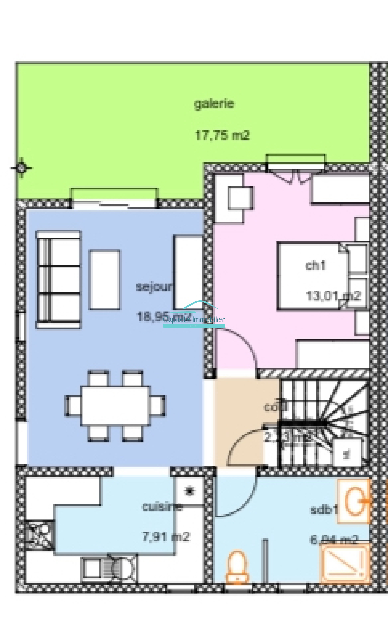
Sur la commune du Moule, jolie villa T4 ensoleillée avec vue sur la campagne. L'intérieur totalise 91.83m² et compte 3 chambres, un espace de vie avec cuisine ouvert sur le salon. Point très pratique, deux salles de bains ajoutent du confort dans la vie quotidienne. Conforme aux dernières normes imposées par la réglementation en matière de construction label de bâtiment à basse consommation. Pour vivre au soleil, la propriété vous propose un jardin de 400m² avec terrasse.

Prix de vente 350 000 €.

Logement adapté pour une famille avec deux enfants.

Pour des informations supplémentaires et découvrir votre futur logement.

Contactez votre Conseillère Stéphanie ARNAL au 06 90 305 309 (RSAC 840 877 021 à Pointe à Pitre)

Honoraire d'agence à la charge du vendeur

pour toutes informations sur les risques éventuels auxquels le bien sera exposé, vous pouvez consulter le site géorisques : www.georisques.gouv.fr

TRAD_SIROCCO_Caracteristique Valeurs
Code postal 97160
Surface habitable (m²) 92 m²
Surface loi Carrez (m²) 91,83 m²
Nombre de chambre(s) 3
Nombre de pièces 4
Nombre de niveaux 2
Vue CAMPAGNE
TRAD_SIROCCO_Caracteristique Valeurs
Nb de salle de bains 2
Cuisine Américaine
Type de cuisine SEMI-EQUIPEE
Mode de chauffage Autre
Type de chauffage Autre
Format de chauffage Individuel
Interphone NON
Visiophone NON
Terrasse OUI
Murs mitoyens 1
Nombre de parking 2
Exposition Est-Ouest
Année de construction 2024
TRAD_SIROCCO_Caracteristique Valeurs
Prix de vente honoraires TTC inclus 350 000 €
DPE GES
DPE ANCIENNE VERSION

Nos outils

Imprimer
Intéressé(e) par Ce bien ?

* Champ obligatoire

contacter l'agence

Les informations recueillies sur ce formulaire sont enregistrées dans un fichier informatisé par La Boite Immo agissant comme Sous-traitant du traitement pour la gestion de la clientèle/prospects de l'Agence / du Réseau qui reste Responsable du Traitement de vos Données personnelles. La base légale du traitement repose sur l'intérêt légitime de l'Agence / du Réseau. Elles sont conservées jusqu'à demande de suppression et sont destinées à l'Agence / au Réseau. Conformément à la loi « informatique et libertés », vous disposez des droits d’accès, de rectification, d’effacement, d’opposition, de limitation et de portabilité de vos données. Vous pouvez retirer votre consentement à tout moment en contactant directement l’Agence / Le Réseau. Consultez le site https://cnil.fr/fr pour plus d’informations sur vos droits. Si vous estimez, après avoir contacté l'Agence / le Réseau, que vos droits « Informatique et Libertés » ne sont pas respectés, vous pouvez adresser une réclamation à la CNIL. Nous vous informons de l’existence de la liste d'opposition au démarchage téléphonique « Bloctel », sur laquelle vous pouvez vous inscrire ici : https://www.bloctel.gouv.fr Dans le cadre de la protection des Données personnelles, nous vous invitons à ne pas inscrire de Données sensibles dans le champ de saisie libre.
Ce site est protégé par reCAPTCHA, les Politiques de Confidentialité et les Conditions d'Utilisation de Google s'appliquent.

Nous suivre sur